高靜圧ダンパースプリングリターン] [プラント用] [耐熱 常温] 
 [空気圧式 ロータリーアクチュエータ

 EGPARF−□□□A S[SS]/EGPARF−□□□A U[SUS]
詳細図面 ss sus ダウンロード サイトマップ
  バタフライ・ダンパーの特長
     ダンパー本体 材質:SS  / SUS−304 
     接続フランジ 材質:SS / SUS−304
     空気圧式 ロータリーアクチュエータ式 スプリングリターン
     HEAVY TYPE プラント用 [高靜圧用]
    
     胴   体    : 鋼管サイズ仕様
     耐熱仕様    : 常温用 清浄空気、腐食性ガスの場合はお問い合せ下さい。
     全閉リーク率  : 通常 1〜3% ] 
     静   圧    : 50 KPa 以下 
     オプション    : 電磁弁・スピコン・開閉信号(リミットスイッチ)・FRユニット・防爆電磁弁・電−空ポジショナー・手動ハンドル
耐熱ダンパー
総合カタログ
単品カタログ
 ・リミットスイッチ付 画像1 画像2
・手動ハンドル付 画像1 画像2
・減圧弁・電磁弁付  画像1 画像2
・防爆電磁弁・SW付  画像1 画像2
・電空ポジョナー式  画像1 画像2
 ・リミットスイッチ付 画像1 画像2
・手動ハンドル付 画像1 画像2
・減圧弁・電磁弁付  画像1 画像2
・防爆電磁弁・SW付  画像1 画像2
・電空ポジショナー式  画像1 画像2

  バタフライ・ダンパーの特長
     ダンパー本体 材質:SS  / SUS−304 
     接続フランジ 材質:SS / SUS−304
     空気圧式 ロータリーアクチュエータ式 スプリングリターン
     HEAVY TYPE プラント用 [高靜圧用]
    
     胴   体    : 鋼管サイズ仕様
     耐熱仕様    : 400℃ 清浄空気、腐食性ガスの場合はお問い合せ下さい。
     全閉リーク率  : 通常 1〜3%  
     静   圧    : 50 KPa 以下 
     オプション    : 電磁弁・スピコン・開閉信号(リミットスイッチ)・FRユニット・防爆電磁弁・電−空ポジショナー・手動ハンドル
高静圧オートダンパー オートダンパー
 自動・ダンパー [耐熱 400℃] EGPARF−□□□A SHS/SHU
耐熱ダンパー

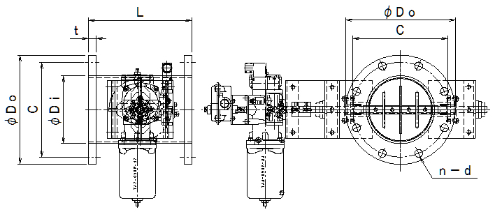
型  式 φDi φDo n−d ft ct
EGPARF- 80A−EHS/EHU 89.1 180 145 4−19 250 14 4.2/4.0
EGPARF-100A−EHS/EHU 114.3 200 165 8−19 250 16 4.5/4.0
EGPARF-125A−EHS/EHU 139.8 235 200 8−19 250 16 4.5/5.0
EGPARF-150A−EHS/EHU 165.2 265 230 8−19 250 18 5.0/5.0
EGPARF-175A−EHS/EHU 190.7 300 260 8−23 250 18 5.3/5.0
EGPARF-200A−EHS/EHU 216.3 320 280 8−23 250 20 5.8/6.0
EGPARF-225A−EHS/EHU 241.8 345 305 12−23 300 20 6.2/6.0
EGPARF-250A−EHS/EHU 267.4 385 345 12−23 300 22 6.6/6.0
EGPARF-300A−EHS/EHU 318.5 430 390 12−23 300 22 6.9/6.0
EGPARF-350A−EHS/EHU 355.6 480 435 12−25 360 24 7.9/8.0
EGPARF-400A−EHS/EHU 406.4 540 495 16−25 400 24 7.9/8.0
EGPARF-450A−EHS/EHU 457.2 605 555 16−25 450 24 7.9/8.0
EGPARF-500A−EHS/EHU 508.0 655 605 20−25 500 24 7.9/9.5
高静圧 オートダンパー オートダンパー
 自動・ダンパー [耐熱 200℃] EGPARF−□□□A EHS/EHU
総合カタログ
単品カタログ
高靜圧ダンパー・スプリングリターン [耐熱  200℃] [プラント用] 
 [空気圧式 ロータリーアクチュエータ
 
 EGPARF−□□□A EHS[SS]/EGPARF−□□□A EHU[SUS]

高静圧 オートダンパー オートダンパー
 自動・ダンパー [耐熱 常温] EGPARF−□□□A S/U
耐熱ダンパー
詳細図面 ss sus ダウンロード サイトマップ
[耐熱 常温]     EHGPARF−□□□A S/U (SS/SUS)
[耐熱 200℃]    EGPARF−□□□A EHS/EHU (SS/SUS)
[耐熱 400℃]    EGPARF−□□□A SHS/SHU (SS/SUS)
型  式 φDi φDo n−d ft ct
EGPARF- 80A−SHS/SHU 89.1 180 145 4−19 250 14 4.2/4.0
EGPARF-100A−SHS/SHU 114.3 200 165 8−19 250 16 4.5/4.0
EGPARF-125A−SHS/SHU 139.8 235 200 8−19 250 16 4.5/5.0
EGPARF-150A−SHS/SHU 165.2 265 230 8−19 250 18 5.0/5.0
EGPARF-175A−SHS/SHU 190.7 300 260 8−23 250 18 5.3/5.0
EGPARF-200A−SHS/SHU 216.3 320 280 8−23 250 20 5.8/6.0
EGPARF-225A−SHS/SHU 241.8 345 305 12−23 300 20 6.2/6.0
EGPARF-250A−SHS/SHU 267.4 385 345 12−23 300 22 6.6/6.0
EGPARF-300A−SHS/SHU 318.5 430 390 12−23 300 22 6.9/6.0
EGPARF-350A−SHS/SHU 355.6 480 435 12−25 360 24 7.9/8.0
EGPARF-400A−SHS/SHU 406.4 540 495 16−25 400 24 7.9/8.0
EGPARF-450A−SHS/SHU 457.2 605 555 16−25 450 24 7.9/8.0
EGPARF-500A−SHS/SHU 508.0 655 605 20−25 500 24 7.9/9.5
総合カタログ
単品カタログ
高靜圧ダンパー・スプリングリターン 耐熱 400℃ [プラント用] 
 [空気圧式 ロータリーアクチュエータ

 EGPARF−□□□A SHS[SS]/EGPARF−□□□A SHU[SUS]
  バタフライ・ダンパーの特長
     ダンパー本体 材質:SS  / SUS−304 
     接続フランジ 材質:SS / SUS−304
     空気圧式 ロータリーアクチュエータ式 スプリングリターン
     HEAVY TYPE プラント用 [高靜圧用]
   
     胴   体    : 鋼管サイズ仕様
     耐熱仕様    : 200℃ 清浄空気、腐食性ガスの場合はお問い合せ下さい。
     全閉リーク率  : 通常 1〜3% ] 
     静   圧    : 50 KPa 以下 
     オプション    : 電磁弁・スピコン・開閉信号(リミットスイッチ)・FRユニット・防爆電磁弁・電−空ポジショナー・手動ハンドル
詳細図面 ss sus ダウンロード サイトマップ
 ・リミットスイッチ付 画像1 画像2
・手動ハンドル付 画像1 画像2
・減圧弁・電磁弁付  画像1 画像2
・防爆電磁弁・SW付  画像1 画像2
・電空ポジョナー式  画像1 画像2
型  式 φDi φDo n−d ft ct
EGPARF- 80A−S/U 89.1 180 145 4−19 250 14 4.2/4.0
EGPRAF-100A−S/U 114.3 200 165 8−19 250 16 4.5/4.0
EGPARF-125A−S/U 139.8 235 200 8−19 250 16 4.5/5.0
EGPARF-150A−S/U 165.2 265 230 8−19 250 18 5.0/5.0
EGPARF-175A−S/U 190.7 300 260 8−23 250 18 5.3/5.0
EGPARF-200A−S/U 216.3 320 280 8−23 250 20 5.8/6.0
EGPARF-225A−S/U 241.8 345 305 12−23 300 20 6.2/6.0
EGPARF-250A−S/U 267.4 385 345 12−23 300 22 6.6/6.0
EGPARF-300A−S/U 318.5 430 390 12−23 300 22 6.9/6.0
EGPARF-350A−S/U 355.6 480 435 12−25 360 24 7.9/8.0
EGPARF-400A−S/U 406.4 540 495 16−25 400 24 7.9/8.0
EGPARF-450A−S/U 457.2 605 555 16−25 450 24 7.9/8.0
EGPARF-500A−S/U 508.0 655 605 20−25 500 24 7.9/9.5